ЦЕНА ГОРЕЛКИ : по запросу
Горелки блочные газовые ГБГ предназначены для сжигания, при соблюдении экологических требований, природного газа в топках газоиспользующих агрегатов соответствующей мощности.
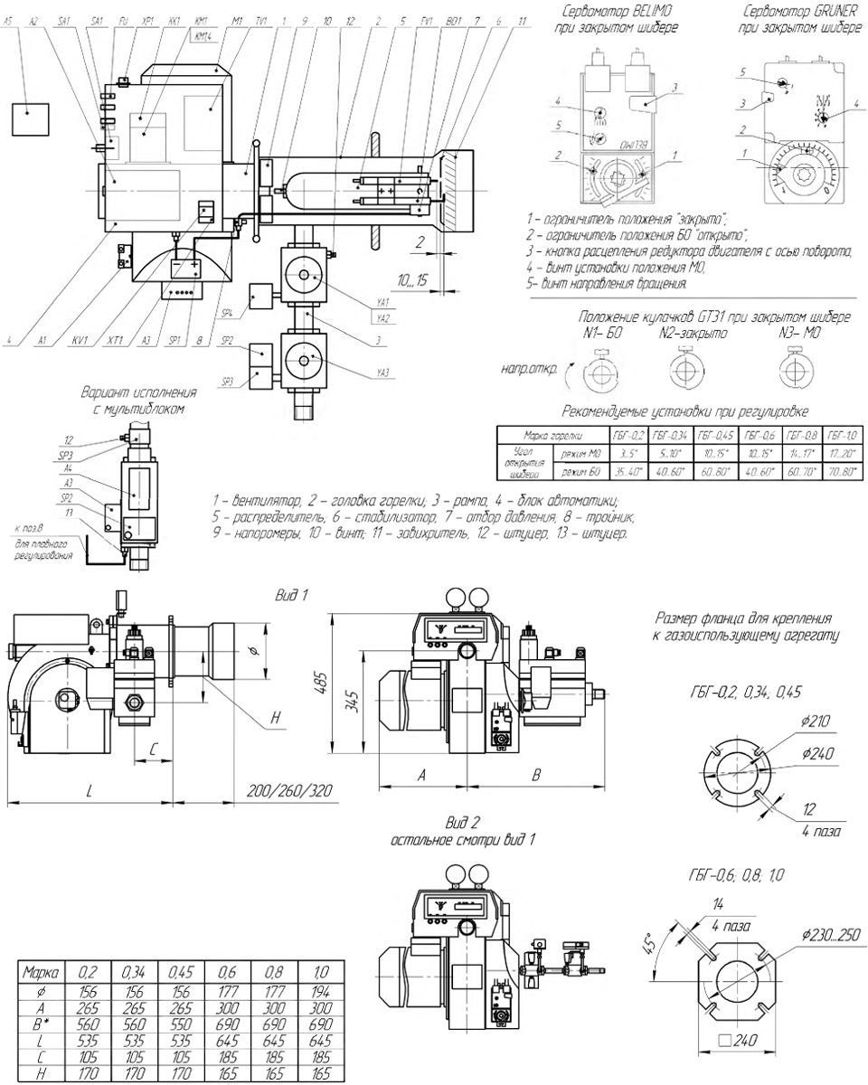
Устройство и работа горелки
Вентилятор подает воздух в головку горелки с необходимым давлением и расходом; природный газ под воздействием давления в подводящем газопроводе через клапаны рампы поступает в головку горелки, где происходит его смешивание с воздухом. Зажигание газовоздушной смеси производится электрической искрой от трансформатора зажигания TV1 через электрод зажигания FV1, технологический процесс сжигания природного газа осуществляется факелом в топке газоиспользующей установки.

При замыкании цепи управления SA1 или внешним терморегулятором происходит пуск горелки. Производится тест герметичности газовых клапанов автоматом АЗ; при положительном тесте включается вентилятор и А1 открывает шибер в положение БО. По окончании вентиляции топки сервомотор А1 поворачивает шибер в положение МО, включается трансформатор зажигании TV1, открывается А4 или клапаны YA1 и YA3, горелка включается в работу в режиме МО; от релейного сигнала терморегулятора или SA1 производится двухступенчатое регулирование тепловой мощности МО-БО.

В горелках с плавным регулированием мощность изменяется плавно от дискретных сигналов регулятора А5 на блоке автоматики путем изменения подачи воздуха А1 и подачи газа А4.
Горелка блочная газовая состоит из следующих основных сборочных единиц:
- вентилятора 1;
- головки горелки 2;
- рампы 3;
- блока автоматики 4;
- кабелей и жгутов коммутации.

Обозначения составных частей элементов:
- А1 - сервомотор шибера воздухозаборника;
- А2 - блок управления;
- АЗ - устройство контроля герметичности клапанов;
- А4 - мультиблок рампы;
- А5 - термостат или измеритель-регулятор (в комплекте горелки с плавным регулированием); BD1 - электрод контроля пламени;
- FV1 - электрод зажигания;
- КК1 - реле электротепловое токовое;
- КМ1 - пускатель электродвигателя
- КМ 1.3, КМ 1.4 - приставка контактная;
- KV1 - реле промежуточное (в комплекте горелки с плавным регулированием);
- ХТ1 - набор зажимов (в комплекте горелки с плавным регулированием);
- FU1, FU2, FU3, FU4 - вставки плавкие;
- Ml - электродвигатель вентилятора;
- SA1 - переключатель режимов работы (малый огонь МО - большой огонь БО - АВТ);
- SP1 - датчик-реле понижения давления воздуха;
- SP2 - датчик-реле понижения давления газа;
- SP3 - датчик-реле повышения давления газа;
- SP4 - датчик-реле контроля герметичности;
- TV 1 - трансформатор зажигания;
- ХР1 - вилка разъема ШР 12;
- YA1 - электромагнитный клапан МО;
- YA2 - электромагнитный клапан БО;
- YA3 - предохранительный запорный электромагнитный клапан.
Основные технические характеристики горелок
| Наименование параметра | Значение для исполнений ГБГ | |||||
| 0,2 | 0,34 0,34Ф 0,34П 0,34ФП |
0,45 0,45Ф 0,45П 0,45ФП |
0,6 0,6Ф 0,6П 0,6ФП |
0,8 0,8Ф 0,8П 0,8ФП |
1,0 1,0Ф 1,0П 1,0ФП |
|
| Номинальная тепловая мощность, МВт Гкал/час |
0,2 0,17 |
0,34 0,29 |
0,45 0,39 |
0,6 0,52 |
0,8 0,69 |
1,0 0,86 |
| Число ступеней регулирования (% ном) |
2 (50/100) |
2 (50) |
2 (50/100) |
2 (50/100) |
2 (50/100) |
2 (40/100) |
| Диапазон плавного регулирования мощности, МВт | — | 0,1-0,39 | 0,12-0,48 | 0,19-0,76 | 0,23-0,9 | 0,28-1,14 |
| Вид топлива | Природный газ ГОСТ 5542-87 | |||||
| Давление газа за основным запорным органом, кПа | 1,4-36* | 1,6-36* | 1,6-36* | 2,5-36* |
4-36* |
4-36* |
| Давление газа перед горелкой при номинальной тепловой мощности**, кПа | 1,1+0,1 | 1,2+0,2 | 1,3+0,2 | 1,2+0,2 | 1,7+0,2 | |
| Давление газа перед горелкой при минимальной тепловой мощности**, кПа | 0,2+0,1 | 0,3+0,1 | 0,2+0,1 | 0,1+0,1 | ||
| Давление воздуха перед горелкой при номинальной тепловой мощности, кПа | ||||||
| Давление воздуха перед горелкой при минимальной тепловой мощности, кПа | 0,2+од | Од+07 | ||||
| Диапазон давления в топке, Па | -20-700 | -20-900 | -20-600 | |||
| Минимальный коэффициент избытка воздуха при номинальной тепловой мощности, не более | 1Д | |||||
| Увеличение коэффициента избытка воздуха в диапазоне регулирования тепловой мощности, не более | 0,2 | |||||
| Длина факела при номинальной тепловой мощности, м не более*** укороченный факел |
0,6 0,4 |
0,75 0,5 |
0,85 0,6 |
1Д 0,75 |
1,4 1,0 |
1,8 1,5 |
| Потери тепла от химической неполноты сгорания, %, не более | 0,4 | |||||
| Концентрация оксида углерода в сухих продуктах сгорания, приведенная к а=1.0, на выходе из камеры горения газоиспользующей установки в диапазоне рабочего регулирования, %, не более | 0,05 | |||||
| Концентрация оксидов азота (NOx) в продуктах сгорания, мгш | Согласно требований: СТБ 1626.1 ГОСТ 10617, ГОСТ 28193, ГОСТ Р 50591 |
|||||
| Время защитного отключения подачи газа при погасании контролируемого пламени и отклонениях контролируемых параметров, с, не более | 2 | |||||
| Потребляемая электрическая мощность, кВт, не более | 0,35 | 0,5 | 0,65 | 1,1 | 1,25 | 1,35 |
| Напряжение электрической сети (фаз- ное/линейное), В | 220/380 | |||||
| Удельный расход электроэнергии, кВтч/МВт | 1,5 | 1,5 | 1,1 | 1,8 | 1,6 | 1,4 |
| Вероятность безотказной работы устройства контроля пламени за 2000 ч, не менее | 0,92 | |||||
| Средний срок службы, лет, не менее | 6 | |||||
| Масса горелки, кг, не более | 52 | 54 | 60 | 80 | 80 | 85 |
| Габаритные размеры, мм, не более длина ширина высота |
925 820 500 |
925 820 500 |
930 840 500 |
1025 920 500 |
1025 920 500 |
1025 920 500 |
| Расход газа при номинальной мощности (при 760 мм рт. сг и 20°С по ГОСТ 293963), пм3/ч | 21,5±1 | 36,5±1,8 | 48,4±2,4 | 64,5±3,2 | 86±4,3 | 108±5 |
| Количество и диаметр газовыпускных отверстий распределителя | 12отв-Змм 12отв-5мм |
12отв-4мм 12отв-5мм |
12огв-5мм 12огв-5мм |
12отв-4мм 12отв-7мм |
12сггв-5мм 12сггв-9мм |
12огв- 5,3мм 12огв-9мм |
| * При заказе для исполнения горелки указывается конкретная величина. ** Корректируется при адаптации горелки к газоиспользующему агрегату по тепловой мощности и анализу продуктов горения. *** Выбор горелки рекомендуем согласовать с изготовителем. |
||||||




