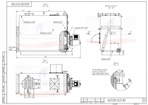
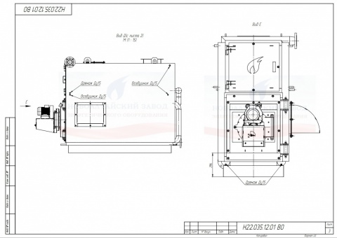
Водогрейный котёл КВа-0,35 в качестве топлива может использовать сжиженный и природный газ, нефть, мазут или дизтопливо. В зависимости от вида топлива, котёл комплектуется соответствующим горелочным устройством. Горелка монтируется с фронта на специальный лаз. Монтаж-демонтаж горелочного устройства прост и не вызывает затруднений при обслуживания котла.
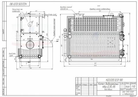
Водогрейный котел КВа-0,35 тепловой мощностью 350 кВт предназначен для выработки тепловой энергии для систем отопления, горячего водоснабжения и вентиляции промышленного и бытового назначения.
Котел КВа-0,35 работает с принудительной циркуляцией воды при рабочем давлении до 0,6 МПа (6 кгс/см2) и температурой нагрева вода до 95ºС, может работать в закрытых и открытых системах и предназначен для работы с непрерывным расходом воды.
Котел КВа-0,35 устанавливается в районных и производственных отопительных котельных в роли главного источника отопления. Котел КВа-0,35 работает с уравновешенной тягой, которую обеспечивает вентилятор блочной горелки и дымосос.
Котел КВа-0,35 состоит из опорной рамы, горелки и трубной системы в легкой изоляции и обшивке.
ТЕХНИЧЕСКИЕ ХАРАКТЕРИСТИКИ
|
Теплопроизводительность, МВт (Гкал/ч) |
0,35 (0,3) |
|
Вид сжигаемого топлива (в зависимости от установленной горелки) |
жидкое топливо, природный газ |
|
Номинальный расход жидкого топлива при Qс =40,53 МДж/кг (9680 ккал/кг), кг/ч н |
31,5 |
|
Температура воды на входе в котел, °С |
70 |
|
Температура воды на выходе из котла, °С |
95 |
|
Расчетный КПД, % |
90 |
|
Давление воды на входе в котел, МПа (кг/см2) |
0,6 |
|
Расход воды через котел, м3 /ч |
12 |
|
Гидравлическое сопротивление, МПа (кг/см2), не более |
0,04(0,4) |
|
Водяной объем котла, м3 |
0,37 |
|
Разряжение в топочной камере, Па |
40±20 |
|
Сопротивление газового тракта котла, Па |
135 |
|
Поверхность нагрева котла, м2 |
18,02 |
|
Объем топочной камеры, м3 |
1,32 |
|
Температура уходящих газов, °С, не более |
230 |
|
Масса котла, кг не более |
1500 |
Комплектация
В стандартную комплектацию входят приборы безопасности, котельный блок, арматура и КИП. По согласованию возможна дополнительная комплектация вентилятором и горелкой.
Комплект поставки
|
Наименование |
Кол. |
|
Блок котла в легкой обмуровке |
1 |
|
Рама котла |
1 |
|
Затвор дисковый Ду-80, Ру16 |
2 |
|
Кран шаровый Ду-15, Ру-16 |
10 |
|
Клапан предохранительный Ру-0,35/0,7 |
2 |
|
Термометр в оправе ТТЖ-М 0-150 |
2 |
|
Манометр МП 3У Ру-10 |
2 |
|
Кран трехходовой 11б18бк, Ду-15, Ру-16 |
2 |
|
Отвод взрывного клапана |
1 |
|
Техническая эксплуатационная документация |
1 компл. |








